Здравствуйте, гость ( Вход | Регистрация )

 
Ответить в данную темуНачать новую тему
Не выключающиеся дворники
name411
сообщение 1.3.2013, 8:54
Сообщение #1


Вставить ник




Группа: Новые пользователи
Сообщений: 3
Регистрация: 1.3.2013
Из: москва
Пользователь №: 7 864
Авто:Toyota Supra 2JZ-GTE



Всем привет!

Столкнулся с проблемой - постоянно работают дворники, не выключаются вообще, при этом в максимальную скорость переходят.
Произошло вчера вечером, пока ехал - пару раз выключались, но потом опять та же тема..
Подразумеваю что, произошло что то с реле, но не могу понять где оно находится, которое отвечает за них...
Предохранитель живой.

Хелп!!
Перейти в начало страницы
 
+Цитировать сообщение
drool
сообщение 1.3.2013, 9:15
Сообщение #2


Вставить ник

Суправод
******

Группа: Активные пользователи
Сообщений: 7 797
Регистрация: 20.7.2006
Из: Москва, САО
Пользователь №: 1 137
Авто:JZA80 `94/02 TT 6MT



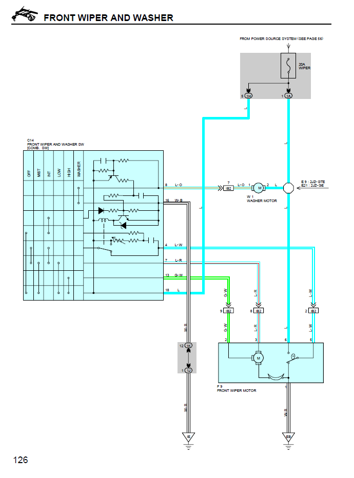
Подрулевой скорее всего головой ломает тебе
Прикрепленное изображение


--------------------
Мой телефон: 8-926-246-91-96
The BEST Supra - JZA80 TT 6MT
Перейти в начало страницы
 
+Цитировать сообщение
name411
сообщение 1.3.2013, 9:30
Сообщение #3


Вставить ник




Группа: Новые пользователи
Сообщений: 3
Регистрация: 1.3.2013
Из: москва
Пользователь №: 7 864
Авто:Toyota Supra 2JZ-GTE



drool, спасибо. а где вообще реле находится которое собственно замыкает весь процесс? где то рядом с переключателем на руле?
Перейти в начало страницы
 
+Цитировать сообщение
drool
сообщение 1.3.2013, 9:40
Сообщение #4


Вставить ник

Суправод
******

Группа: Активные пользователи
Сообщений: 7 797
Регистрация: 20.7.2006
Из: Москва, САО
Пользователь №: 1 137
Авто:JZA80 `94/02 TT 6MT



Сюда по всему всё в подрулевом и есть.


--------------------
Мой телефон: 8-926-246-91-96
The BEST Supra - JZA80 TT 6MT
Перейти в начало страницы
 
+Цитировать сообщение
name411
сообщение 4.3.2013, 13:52
Сообщение #5


Вставить ник




Группа: Новые пользователи
Сообщений: 3
Регистрация: 1.3.2013
Из: москва
Пользователь №: 7 864
Авто:Toyota Supra 2JZ-GTE



drool,
схема помогла электрику, спасибо!

Проблема оказалась в отгнившем проводе на разъеме бачка омывателя.
Перейти в начало страницы
 
+Цитировать сообщение
drool
сообщение 4.3.2013, 13:55
Сообщение #6


Вставить ник

Суправод
******

Группа: Активные пользователи
Сообщений: 7 797
Регистрация: 20.7.2006
Из: Москва, САО
Пользователь №: 1 137
Авто:JZA80 `94/02 TT 6MT



name411, точно! Вспомнил, что у друга такая же история была - изоляция повредилась и дворники исполняли разные приколы smile.gif Не за что!


--------------------
Мой телефон: 8-926-246-91-96
The BEST Supra - JZA80 TT 6MT
Перейти в начало страницы
 
+Цитировать сообщение
Sub
сообщение 4.3.2013, 14:04
Сообщение #7


Вставить ник

Single wingless
******

Группа: Главные администраторы
Сообщений: 7 201
Регистрация: 16.2.2006
Из: Москва
Пользователь №: 5
Авто:10/96 JZA80 T67DBB 6MT, 09/00 UZS161 EUR



name411, в FAQ выложены все схемы и не только. Рекомендую скачать, всегда пригодятся.


--------------------
Новые запчасти в наличии и на заказ. Оригинал, неоригинал, масла, спецжидкости.


10/1996 || TT: Acre, AEM, Aeromotive, A'PEXi, ARP, ATP Turbo, BFGoodrich, Blitz, Brian Crower, Boost Logic, Carbonetic, Cusco, Eibach, GReddy, HKS, Innovate, K & N, Koyorad,
KYB, Michelin, Mickey Thompson, Precision, Recaro, Soara, Sound Performance, SSR, Summit, Synapse, Thermo Tec, Titan, Titek, Toyota, TRD, Trust, Walbro, Yokohama
+ Custom


Спорить с админом - всё равно, что биться с драконом. Вроде и пинка ему уже отвесил, и мечом потыкал, и кажется, что горло пристроился пилить, но тут ему надоело и он выдохнул...
Перейти в начало страницы
 
+Цитировать сообщение

Ответить в данную темуНачать новую тему
1 чел. читают эту тему (гостей: 1, скрытых пользователей: 0)
Пользователей: 0

 



RSS Текстовая версия Сейчас: 28.4.2026, 6:20